Instalaciones de Aire Comprimido
Un sistema de aire comprimido es un conjunto de equipos y tuberías diseñado para producir, almacenar, tratar y distribuir aire a presión
utilizado como fuente de energía limpia, versátil y segura en múltiples procesos industriales
Principales usos y alcances en la industria
Accionamiento de herramientas neumáticas (taladros, llaves de impacto, lijadoras).
Automatización y control en líneas de producción.
Instrumentación de precisión (válvulas, actuadores).
Procesos de soplado, limpieza y secado.
Transporte neumático de materiales ligeros.
Aplicaciones médicas e industriales donde se requiere aire de alta pureza (ISO 8573-1).
Principales componentes de un sistema
Compresores (de pistón, tornillo o centrífugos).
Filtros y secadores para garantizar calidad del aire.
Tanques de almacenamiento (recipientes a presión).
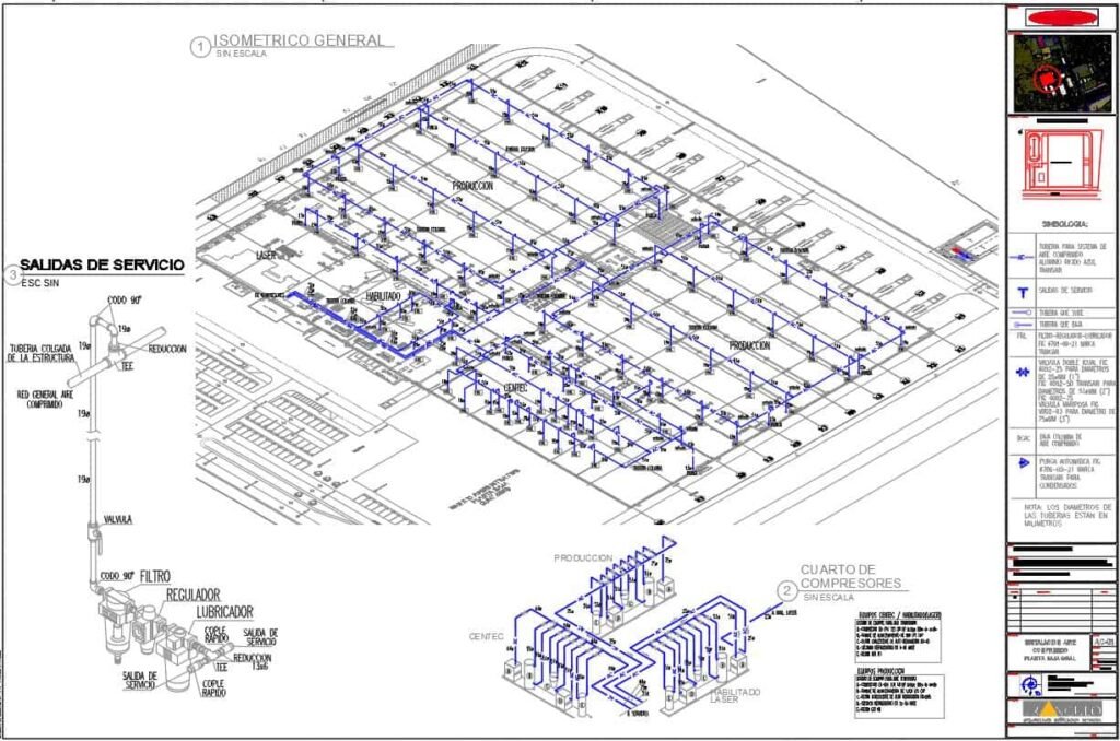
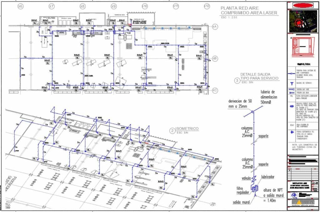
Red de distribución (tuberías, válvulas, reguladores).
Puntos de consumo (conexiones rápidas, manifolds).
Sistema de control y monitoreo para eficiencia y seguridad.
Categorías:
Lubricados
Libres de aceite (para industrias alimenticias y farmacéuticas).
Rangos de presión de trabajo:
Baja: 3 – 5 bar (procesos neumáticos simples).
Media: 6 – 10 bar (línea industrial estándar).
Alta: 11 – 15 bar (procesos especiales).
Normativas Aplicables para Sistemas de Aire Comprimido en Instalaciones Industriales
- ISO (International Standard Organization)
- ISO 8573 → Calidad del aire comprimido (pureza, humedad, partículas).
- ISO 12500 → Filtros de aire comprimido.
- ISO 7183 → Secadores de aire comprimido.
- ANSI / ASME (American Society of Mechanical Engineers)
- ASME Boiler and Pressure Vessel Code → recipientes a presión y tanques de aire.
- OSHA (Occupational Safety and Health Administration – EE.UU.)
Seguridad laboral en sistemas neumáticos y recipientes a presión.
