Instalaciones Hospitalarias

pb cucs pq
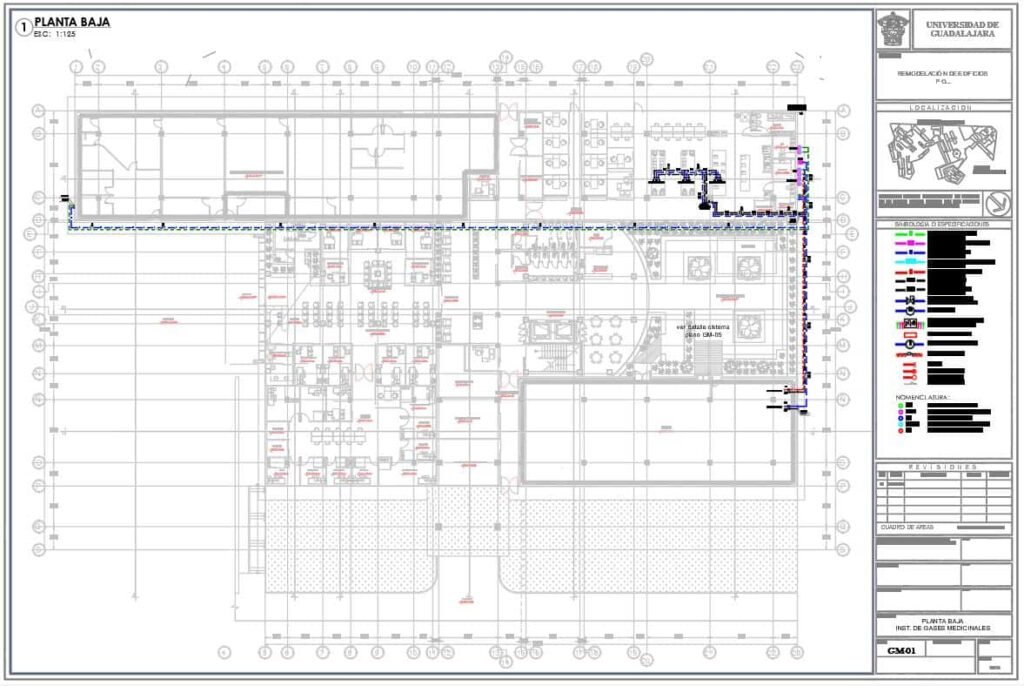
Red de Gases medicinales en edificios P y Q del CUCS de la U de G
salida o2
Conexión de equipo médico a salida mural de Oxígeno

 

¿Cómo funcionan?
  1. El gas se almacena en la central de suministro.

  2. Se regula la presión y se distribuye por la red de tuberías.

  3. Se controla con válvulas y alarmas en cada zona.

  4. Llega a la salida terminal, donde se conecta el equipo médico (respiradores, succión, anestesia, etc.).


¿Para qué sirven?
  • Suministrar oxígeno para respiración asistida.

  • Proveer gases anestésicos en quirófano.

  • Alimentar sistemas de respiración mecánica.

  • Generar vacío para aspiración de fluidos.

¿Cómo están integradas?
  • Fuente de suministro (cilindros, tanques, compresores).

  • Red de tuberías de cobre que distribuye a todo el hospital.

  • Válvulas de control para seccionar áreas.

  • Alarmas y paneles de control que vigilan condiciones del sistema.

  • Salidas terminales en cada cama o área de atención.

inst cobre 01
Manifold para conexión y control de tanques de O2
Sistemas de Gases Medicinales (Oxígeno, Oxido Nitroso, Vacío, Aire Comprimido Medicinal, Nitrógeno, CO2)

Son sistemas especializados que distribuyen gases esenciales para la atención médica (oxígeno, óxido nitroso, aire medicinal, vacío clínico, entre otros) desde una fuente central hasta las áreas donde se requieren, como quirófanos, urgencias, terapia intensiva y hospitalización.

Ventajas de un proyecto bien calculado y bien realizado para gases medicinales 
  • Seguridad: evitar fugas, contaminaciones y riesgos explosivos.

  • Confiabilidad: asegurar que siempre haya gas disponible en quirófanos y áreas críticas.

  • Normatividad: garantizar cumplimiento con estándares internacionales (NFPA 99, NOM aplicables).

  • Eficiencia operativa: ahorrar en consumo y mantenimiento.

  • Atención oportuna: los gases llegan con presión, flujo y pureza correctos para salvar vidas.

Principales Normativas que regulan los Proyectos e Instalaciones de Gases Medicinales

  • Normativas del Depto. de Ingeniería de Diseño de  Instalaciones del IMSS
  • ISO 7396-1 / 2 → Sistemas de canalización para gases medicinales.
  • ISO 14175 → Gases para soldadura (ejemplo: argón y mezclas).
  • CGA (Compressed Gas Association – EE.UU.)
  • Guías de diseño, almacenamiento y transporte de gases comprimidos.
  • FDA (Food and Drug Administration – EE.UU.)
  • Regula el uso de gases medicinales en hospitales (en EE.UU.).
  • USP (United States Pharmacopeia)
  • Normas de pureza y calidad de gases medicinales.
  • EN (Normas Europeas – CEN)
  • EN 12021 → Aire respirable.
  • EN 737 (actual EN ISO 7396) → Redes de gases medicinales.

 

simb 01
salidas tipo
Placas de identificacion de salidas murales
detalles 01
Scroll al inicio