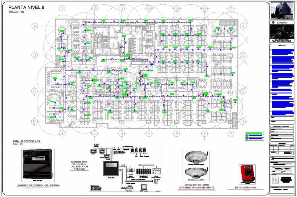
Instalaciones Contra Incendio Detección y Supresión
Sistemas de protección activa — red húmeda, red seca, gabinetes, hidrantes, rociadores automáticos (sprinklers), sistemas de supresión por agentes limpios, bombeo bajo NOM´s y NFPA
Selección de Materiales y equipos certificados conforme a NFPA (National Fire Protection Association), FM (Factory Mutual) y UL (Underwriters Laboratories), además de cumplir con las NOM mexicanas y reglamentos de construcción
Ejecución de instalaciónes con personal certificado, realizando pruebas hidrostáticas, pruebas funcionales y de cobertura, así como el comisionamiento del sistema ante autoridades competentes (Protección Civil, CFE, bomberos, aseguradoras) hasta la obtención de constancias de cumplimiento normativo.
Control administrativo completo que incluye:
- estimaciones
- generadores
- planos “as-built”
- memoria técnica
- bitácoras de instalación y
- manuales de operación
Nuestro compromiso es entregar instalaciones contra incendio que salvan vidas, protegen inversiones y garantizan cumplimiento legal, con una ejecución profesional y segura.
